首页/ 工程进度
天津地铁7号线工程进展

天津地铁7号线工程进展

天津地铁7号线工程进展,近日,天津地铁7号线一期工程PPP项目公司已正式成立。神州高铁公告称公司子公司神州高铁轨道交通设计(天津)有限公司总经理在项目公司担任董事。 现将项目公司相关情况公告如下: 1、公 ...... 阅读原文

更新时间:2020-09-12T17:06:32
阳光太阳城联排别墅在售

阳光太阳城联排别墅在售

阳光太阳城联排别墅在售,中户户型建筑面积为209、217平米(建面),均价18000元/平米(建面);边户户型建筑面积为246、318平米(建面),均价21000元/平米(建面),地上4层,地下2层。 项目位于西青区杨柳... 阅读原文

更新时间:2020-09-12T17:00:36
鸿坤原乡小镇目前高层、叠拼、联排别墅在售

鸿坤原乡小镇目前高层、叠拼、联排别墅在售

鸿坤原乡小镇目前高层、叠拼、联排别墅在售。高层62#,28层到顶,2梯6户,目前剩余18套建筑面积为47平米(建面)的一居房源在售,均价11000元/平米(建面);叠拼别墅21#,地上3层,地下一层,上叠122平米(建面... 阅读原文

更新时间:2020-09-12T16:42:28
鸿坤原乡半岛具体开盘时间待定

鸿坤原乡半岛具体开盘时间待定

鸿坤原乡半岛今年无开盘计划,具体开盘时间待定。 鸿坤原乡半岛待售产品为洋房及联排别墅,洋房8、11层到顶,1梯2户,户型为120、140平米(建面)三室(建筑面积),均价待定。联排别墅,为六、八联排,面积170-200平... 阅读原文

更新时间:2020-09-12T15:54:29
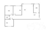
天津岳园小区的户型图

天津岳园小区的户型图

岳园小区在售96-125平米(建面)户型, 6楼125平户型、2楼96平米(建面)、5楼117平米(建面)、3楼112平米(建面),价格在94-100万之间, A户型解析:整个空间方正,拐角少,后期利用难度低,提升整个空... 阅读原文

更新时间:2020-09-12T13:33:11
富力又一城合雅园洋房价格上调

富力又一城合雅园洋房价格上调

富力又一城合雅园洋房价格上调,目前均价21000元/平,合雅园8-10、12、13#在售,主推142平(建面)三室两厅两卫和169平(建面)四室两厅两卫户型。 合雅园(F地块)高层6、7、16、17#,验资15万可排卡,... 阅读原文

更新时间:2020-09-12T12:23:18
津泊湾精装高层均价9300元/平

津泊湾精装高层均价9300元/平

津泊湾精装高层18层到顶,均价9300元/平,精装标准1000元/平,2梯7户,户型为48-81平方米1-2居,地上车位免费。 津泊湾联排别墅,地上三层,地下一层,均价12000元/平,395万/套起。 项目简介 津泊湾... 阅读原文

更新时间:2020-09-12T11:33:31
壹克拉公馆预计于2017年推出复式产品

壹克拉公馆预计于2017年推出复式产品

壹克拉公馆预计于2017年推出复式产品40-80平买一层送一层(使用面积80-180平左右),预计均价40000元/平,推出楼栋待定。现房入... 阅读原文

更新时间:2020-09-12T11:00:51
租房看哪4证 2020租房注意事项

租房看哪4证 2020租房注意事项

租房看哪4证,2020租房注意事项。选择租房方案有很多种注意事项和技巧,可是对很多人来说都没有关注过这些要点,找到的房子都不太满意,以后租房质量并不是特别高。大家可以看看租房看哪4证以及租房注意事项,了 ...... 阅读原文

更新时间:2020-09-12T10:06:48
燕郊美林•君渡的开发商怎么样

燕郊美林•君渡的开发商怎么样

燕郊美林 君渡的开发商怎么样 美林 君渡由美林地产集团斥资开发。美林地产集团有着十余年成功的房地产开发经验,拥有雄厚的资金实力和专业的开发能力。集团在燕郊先后成功开发了“美林新东城”、“美林湾”系列 ...... 阅读原文

更新时间:2020-09-12T09:07:05