首页 /楼盘 /天津 /滨海新区 /普通住宅/期房/建投滨海云阙 更新时间:2026-03-11T10:39:02 /199次浏览 /None人有意向 /None人提问

建投滨海云阙

期房 普通住宅
楼盘均价: 32000元/m²
楼盘地址:[天津-]滨海新区东至北海西路、南至兴达街、西至淀山路、北至第一大街...
主力户型: 4室2厅220m² 4室2厅180m² 4室2厅158m²
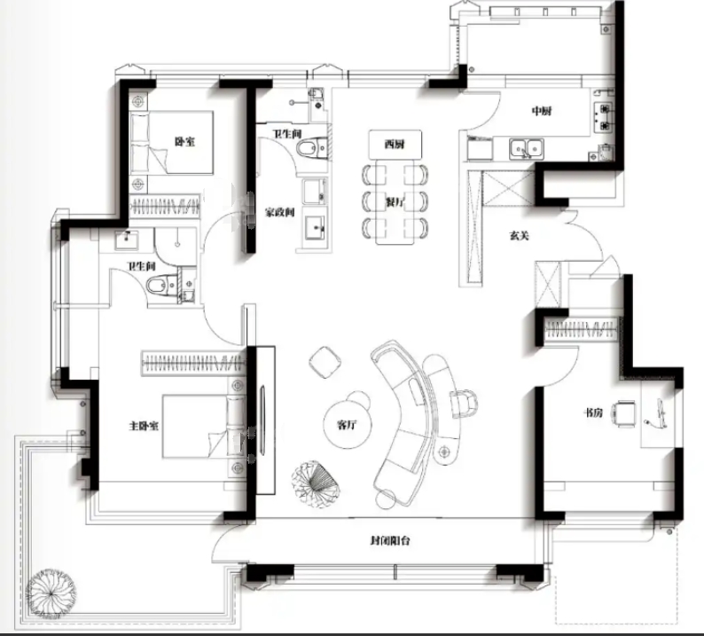
建投滨海云阙户型图:

220,户型居室:【4室2厅1厨3卫】,建筑面积:【220平方米】

180,户型居室:【4室2厅1厨2卫】,建筑面积:【180平方米】

158,户型居室:【4室2厅1厨2卫】,建筑面积:【158平方米】

注:本页面提供天津建投滨海云阙所有户型图,建投滨海云阙在售主推户型,建投滨海云阙热门热销户型,建投滨海云阙开盘的户型图

更多一居户型、二居户型、三居户型、四居户型、五居及以上户型、别墅户型、商铺户型等都在安居乐业网!欢迎咨询鉴赏了解更多建投滨海云阙户型

安居乐业网声明:凡注明“来源:安居乐业”或“来源:安居乐业网”的所有文字图片等资料,版权均属安居乐业网所有,转载请注明出处;本站页面中所有的面积均为建筑面积,本网部分资料为网上搜集转载,均尽力标明作者和出处,对于本网刊载作品涉及版权等问题的,请作者与本网站联系,本网站核实确认后会尽快予以处理。文章内容仅供参考,不构成投资建议,也不代表安居乐业赞同其观点。如其他媒体、网站或个人转载使用,请与著作权人联系,并自负法律责任。