新房
新房
资讯
手机找房
地图找房
您好,admin
管理
退出
登陆
注册
收藏
楼盘检索
首页
楼盘
新房中心
专题
楼盘专题
策划专题
开盘预告
房产资讯
新房资讯
政策法规
楼市快讯
更多房产资讯
问答
新房置业
二手房
房屋租赁
家居装修
房价走势
购房工具
更多
图库
置业帮助中心
二手房资讯
房价资讯
换一张
立即登录
首页
/
楼盘
/
重庆
/
璧山区
/
普通住宅
/
现房
/
金科昆翔黛山悦府
更新时间:
2025-10-31T17:52:39
/
270
次浏览
/
0
人有意向
/
0
人提问
金科昆翔黛山悦府
现房
普通住宅
楼盘首页
楼盘详情
楼盘动态
价格走势
图库
户型图
楼盘点评
问答
楼盘首页
楼盘详情
楼盘动态
价格走势
图库
户型图
楼盘点评
问答
1/1
原图
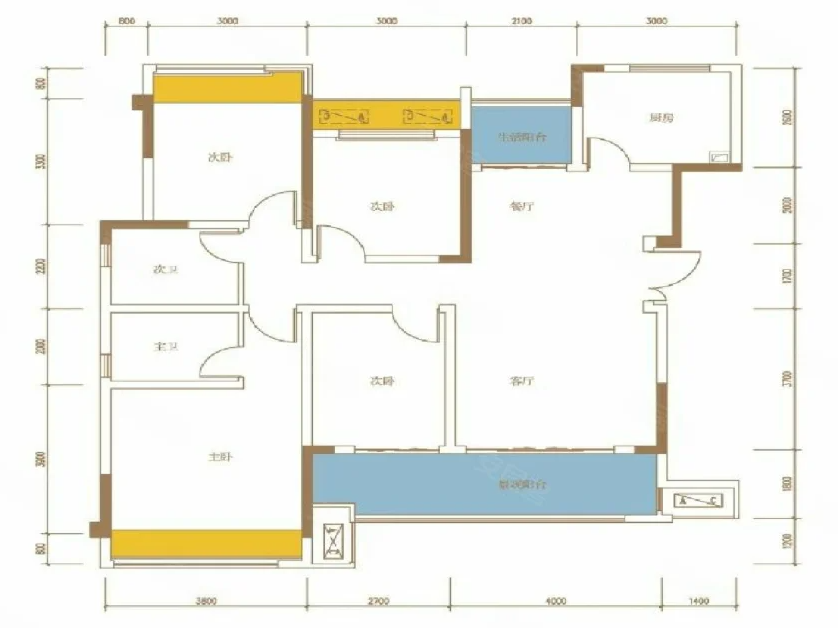
4室2厅2卫1厨, 建面124平米
户型居室:
4室2厅2厨1卫
建筑面积:
124
m²
参考均价:
9811
元/平
参考总价:
122
万
(参考总价=参考均价*建筑面积)
贷款方案:
首付
2
成,贷款
20
年,月供
4435
元
首付
3
成,贷款
20
年,月供
3880
元
首付
2
成,贷款
30
年,月供
3623
元
首付
3
成,贷款
30
年,月供
3171
元
贷款计算器>>
为您推荐主力户型
4室2厅2厨1卫 建面124m²
主力户型
参考均价:9811元/平
了解更多信息
已报名
1319
人
房源共
200
套